월세 8,163/132만원
서울 마포구 신수동
광흥창역 7분, 주차10대, 전용용 115평. 무권리.학원 병원가능
#추천 #시설 완비
확인매물 : 2025-11-17
매물
설명
📣 매물번호 알려주시면 빠른 상담이 가능합니다.
BDB 문24639 📞 010-7939-0356📱
--------------------------------------------
💡매 물 특 징 💡
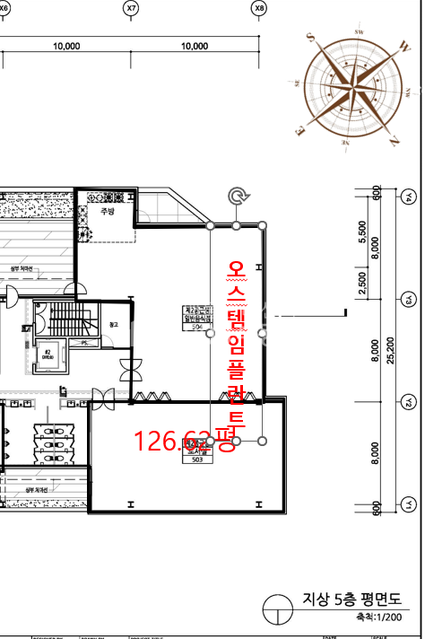
📌 광흥창역 7분. 주차 10대. 실 115P
📌 지상 5층 일부 사용. 약 115평
📌 옵션 : 천장냉난방기, 레일조명, 창고, 회의실
대표실, 전용 테라스 등
📌 층고 높은 편 & 채광 매우 양호.
📌 신수동 사거리 인근 쾌적한환경
📌1층 카페, 은행있는 중형건물
📌1층 주차 10대 . 방문주차 매우 편리
[1대 월 12 만원{부가세 포함) ]
📌2종근생 일반음식점+ 휴게음식점 용도
📌보증금 월세 비율변경 및 렌트프리 최대협의
🔎 매 물 정 보 🔎
✨ 면 적 : 전용 약 115평 (도면있음)
✨ 보증금 : 81,653,000원
✨ 월 세 : 8,165,300원 (부가세별도)
✨ 관리비 : 1,321,774원 (부가세별도)
💲 합 : 9,487,074원 (부가세별도)
🏢 입주시기 : 즉시입주
🚻 화 장 실 : 2개 (외부 남녀분리 )
승 강 기 : 2대
🚗 주 차 : 10대 (지상 1층 주차)
----------------------------------------------
🎫 담당 : 문호영이사 010-7939-0356


공유하기
네이버
카카오톡
페이스북
트위터
카카오스토리
네이버밴드
구글플러스
SMS